|
当原建筑物的外观及净空均受限制时,只能增、扩建地下或半地下室。
 下挖地坪 地坪加固 地下加层首先应考虑对原建筑物和相邻建筑物的影响,必要时可采取侧向支护、地基基础加固及结构加固等措施,对原建筑物及相邻建筑物及时进行监测,最忌盲目速成。因挖地下室造成相邻房屋倒塌导致财产损失和地下室施工过程中土方坍塌导致工人伤亡的事故也有发生。
下列图片是简单介绍平房室内挖地下室侧向支护桩基施工方法及步骤。
 
护坡桩平面图:上图黑点是室内套管、四周是是墙体。 第一步:侧向支护套管安装
 第二步:侧向桩基灌浆 第三部:支护套管与地面圈梁连接浇注.
以上桩基套管长度必需是地下室深度的2倍以上、即打算挖1米地下室就要打2米的桩基套管,只有当以上支护工作按规范完成并确保桩基凝固后才能进行土方开挖的工作,
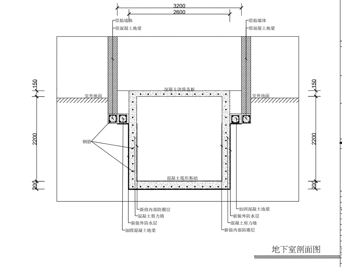
当地下室成功后新增结构与原结构要有可靠的连接点。
做好双重防水即结构外防水和结构自身防水。
附加防水即新旧节点、阴阳角等特殊部位还应增加附加防水层。
地下室施工案例参考:


 地下储藏间
|